u 大赛简介:
包子漫画 第三届“公共空间艺术设计大赛”由包子漫画 承办。本次大赛重在鼓励学生在公共空间设计方面的创造性,主办方提供设计项目,参赛者根据题目要求发挥创意。大赛旨在为同学提供展示对室内空间设计的能力和展示自我的平台,同时培养新时代设计人才。
作为包子漫画 专业技能提升计划项目,具有风景园林相关专业特色。重点培养学生学科知识的实际应用能力,以增强包子漫画 专业技能人才的就业竞争力。
u 大赛组织单位:
主办单位:包子漫画 教务处
承办单位:包子漫画 环境设计系
宣传媒体:校、院各媒体平台
u 设计主题
本次比赛设计对象为公共空间,对给出的图纸进行办公空间设计(原始平面图参考附件1)。
u 参赛对象和参赛报名方法
1、参赛对象:所有在校学生。参赛者可以个人形式或以团队形式(最多3人)参加本次比赛,每个参赛者或每个参赛团队限交一份参赛作品。
2、参赛报名方法:
请上包子漫画 网站下载报名表(附件2),在提交最终比赛文件的时候,与报名表一起提交。电子文档形式发送到邮箱:[email protected]。
u 参赛要求
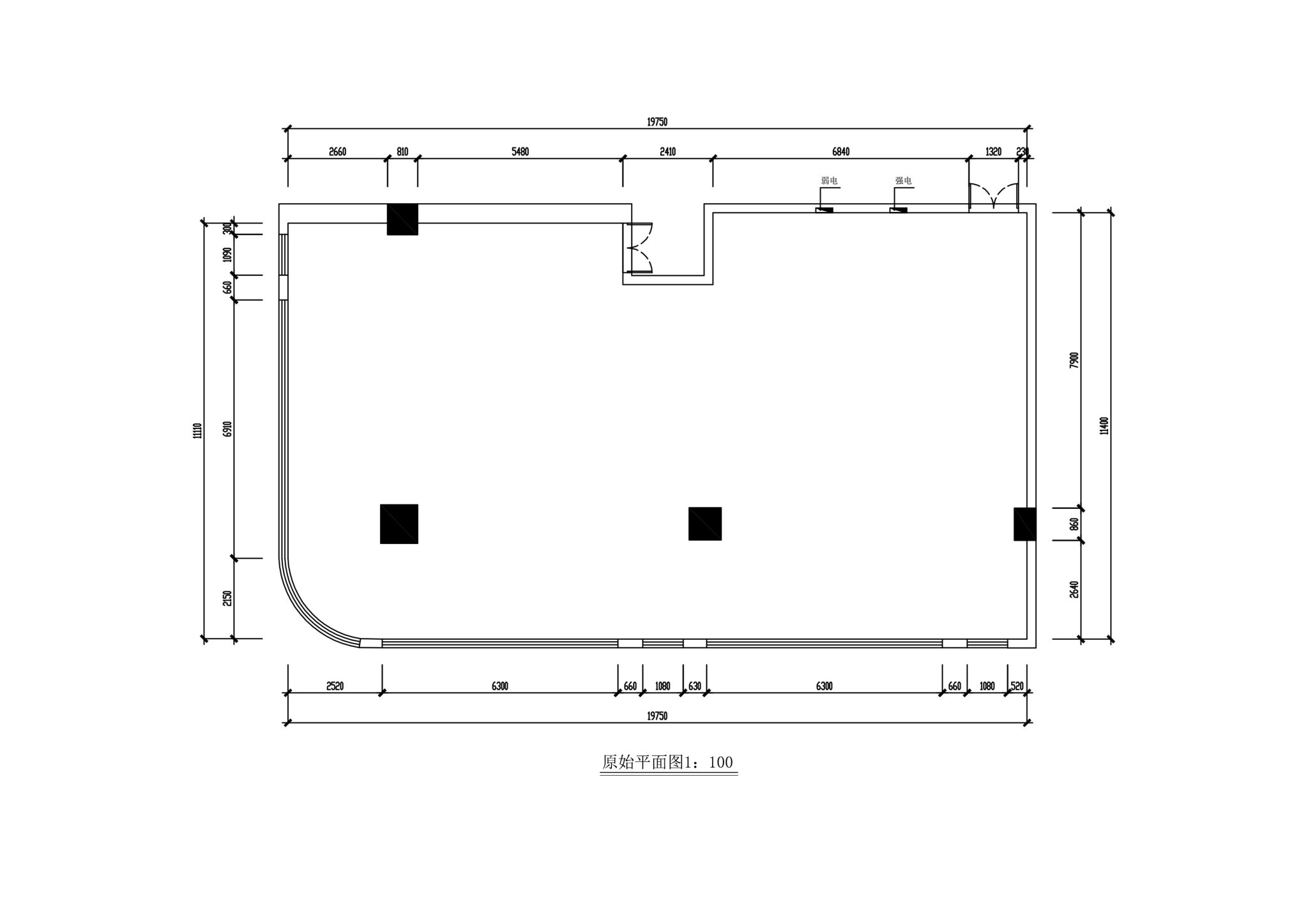
1、按给出图纸进行办公空间设计。该空间在市中心商业建筑中,套内214平米,层高3.15米,要求功能区设计合理,布局满足功能需求同时有创新点,视觉语言积极向上,能表现出办公空间的个性和特点。
2、原始户型图如下:

3、表现方式不限,渲染软件不限。
4、室内承重柱体不能拆除,其余墙体涉及外墙形象,不能随意拆除和增加,不得开挖地下室及增加楼层。
5、最终大赛设计作品归作者本人和主办方所有。
6、参赛作品均不退还。
u 作品提交内容及规格
1、办公效果图一套(5张以上JPEG格式的各功能区域效果图),布局JPEG格式平面图,重要区域剖立面图,设计说明文字。
2、ppt报告1份。
3、展板资料:展板内容应包括主要平面、剖立面图、效果图及设计说明等。由参赛者在560mm×730mm版心幅面范围内(统一采用竖式构图)自行设计版面,注明作者姓名,展板的最终电子文档(保存为*.JPG格式、分辨率为300dpi)。
电子档案发送到:[email protected];
u 奖项设置
1、本次大赛设有以下奖项:
最佳设计奖一名 获奖证书,奖金1500元
最佳风格奖二名 获奖证书,奖金1000元
最佳创新奖三名 获奖证书,奖金600元
u 评审办法
为保证大赛的公平、公正,真正选出具有原创性的优秀作品,本次大赛特别邀请包子漫画 老师及其他协办单位专业老师组成评审委员会进行评审。
u 活动时间
大赛作品征稿时间:即日起——5月29日
优秀作品评审及颁奖: 2023年5月下旬
大赛优秀作品展览阶段:2023年6月上旬
u 大赛组委会地址
包子漫画 环境设计系办公室
联系人:李老师 15198012361;张老师 13540078612
包子漫画 环境设计系
二〇二三年三月十三日